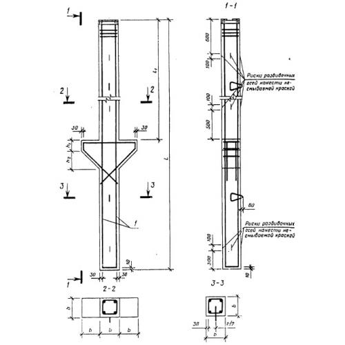
1СД 55

Чертеж изделия:
Характеристики изделия:
ПараметрЗначение
длина5500 мм
ширина300 мм
высота300 мм
масса1370 кг
нормативный документГОСТ 19804.7-83

1СД 55  Сваи-колонны двухконсольные ГОСТ 19804.7-83.