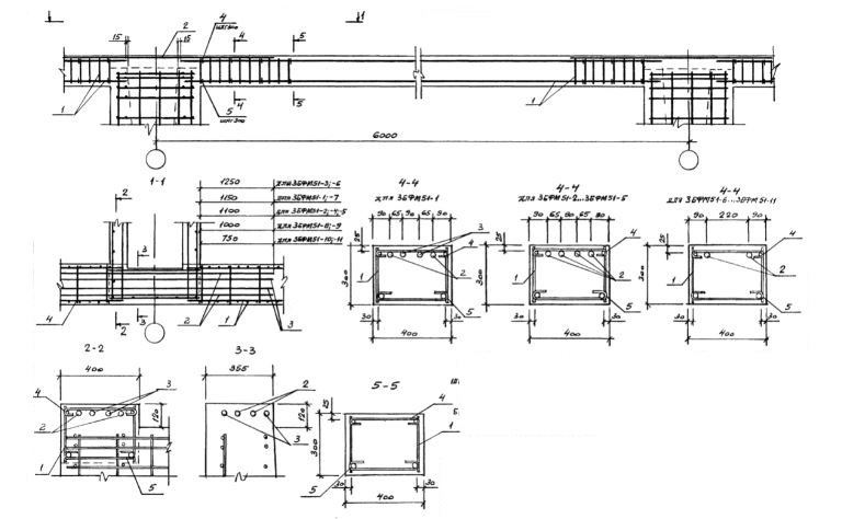
3БФМ 51 балки фундаментные
Характеристики изделия:
| Параметр | Значение |
|---|---|
| длина | 6000 мм |
| ширина | 400 мм |
| высота | 300 мм |
| масса | 1775 кг |
| нормативный документ | Серия 1.015.1-1.95 |
Цена:
Рассчитать стоимость3БФМ 51 Балки фундаментные монолитные Серия 1.015.1-1.95.
| Параметр | Значение |
|---|---|
| длина | 6000 мм |
| ширина | 400 мм |
| высота | 300 мм |
| масса | 1775 кг |
| нормативный документ | Серия 1.015.1-1.95 |
3БФМ 51 Балки фундаментные монолитные Серия 1.015.1-1.95.
