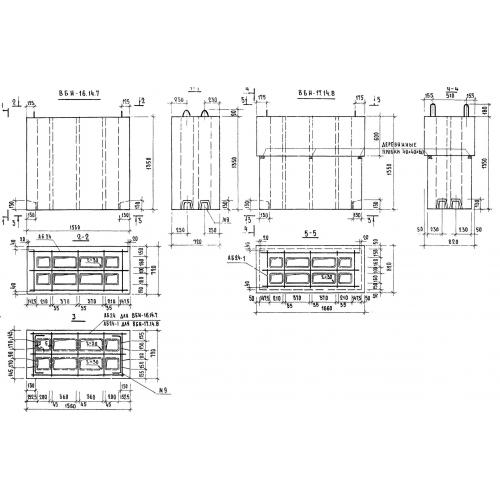
ВБН 16.14.7
Характеристики изделия:
| Параметр | Значение |
|---|---|
| длина | 1560 мм |
| ширина | 720 мм |
| высота | 1350 мм |
| вес | 1480 кг |
| серия | 1.134-3 |
Цена:
Рассчитать стоимостьВБН 16.14.7 Наружные вентиляционные блоки по серии 1.134-3.
| Параметр | Значение |
|---|---|
| длина | 1560 мм |
| ширина | 720 мм |
| высота | 1350 мм |
| вес | 1480 кг |
| серия | 1.134-3 |
ВБН 16.14.7 Наружные вентиляционные блоки по серии 1.134-3.
