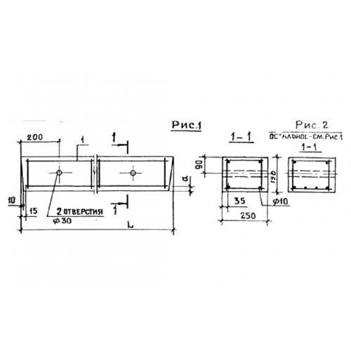
БУ 27

Чертеж изделия:
Характеристики изделия:
ПараметрЗначение
длина2700 мм
ширина250 мм
высота190 мм
вес320 кг
серия1.139-1

БУ 27 Перемычки брусковые усиленные по серии 1.139-1.