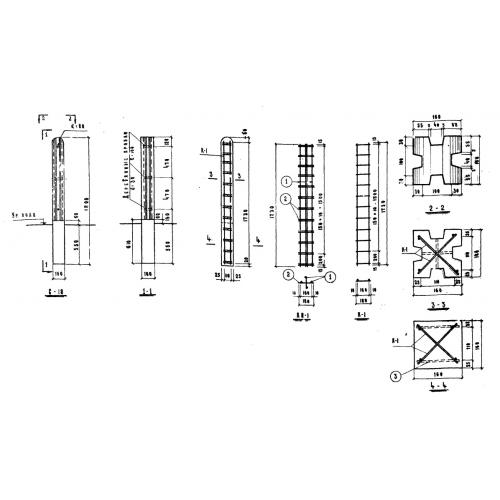
С-18

Чертеж изделия:
Характеристики изделия:
ПараметрЗначение
длина1800 мм
ширина160 мм
высота160 мм
вес100 кг
серия2.800-2

С-18 Стойки железобетонные с крестообразным поперечным сечением по серии 2.800-2.