ПР-9

Чертеж изделия:
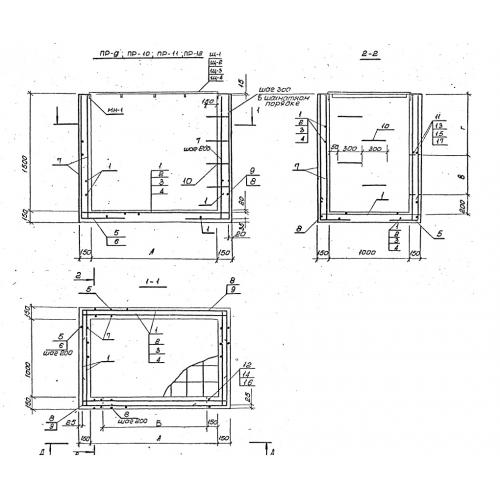
Характеристики изделия:
ПараметрЗначение
длина1300 мм
ширина1300 мм
высота1650 мм
вес3125 кг
серия3.006 КР-1

ПР-9 Монолитные приямки по серии 3.006 КР-1.