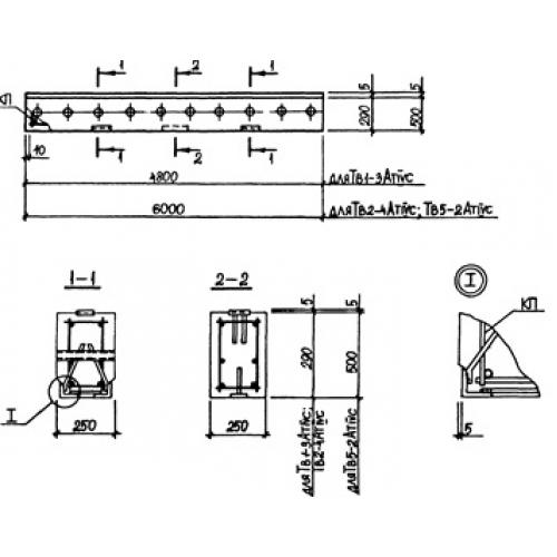
Тв 2

Чертеж изделия:
Характеристики изделия:
ПараметрЗначение
длина6000 мм
ширина250 мм
высота290 мм
масса110 кг
нормативный документСерия 3.015-3/92

Тв 2  Траверсы Серия 3.015-3/92.