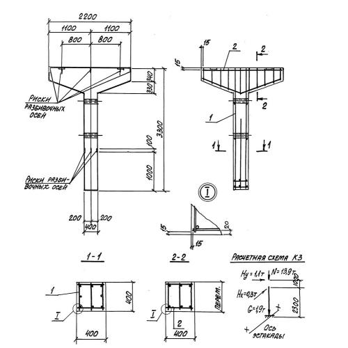
К 3

Чертеж изделия:
Характеристики изделия:
ПараметрЗначение
длина3300 мм
ширина2200 мм
высота400 мм
вес2100 кг
серия3.016.1-17.93

К 3 Колонны по серии 3.016.1-17.93.