СТ 270.4

Чертеж изделия:
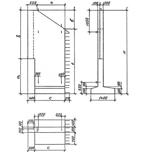
Характеристики изделия:
ПараметрЗначение
длина1320 мм
ширина1400 мм
высота6250 мм
масса5500 кг
нормативный документСерия 3.501.1-126

СТ 270.4  Блоки откосных стенок Серия 3.501.1-126.