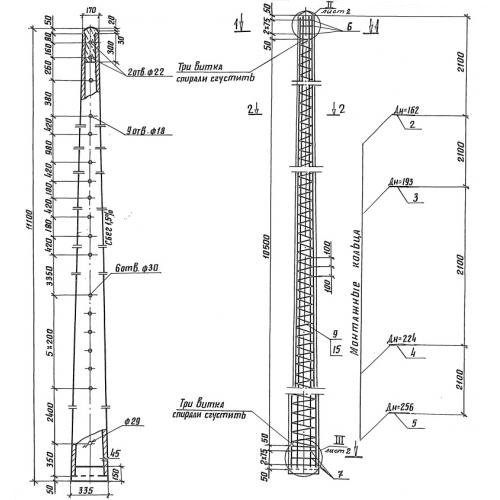
С 11.1
Характеристики изделия:
| Параметр | Значение |
|---|---|
| длина | 11100 мм |
| ширина | 335 мм |
| высота | 335 мм |
| масса | 880 кг |
| нормативный документ | Серия 3.501.1-145 |
Цена:
Рассчитать стоимостьС 11.1 Стойки железобетонные Серия 3.501.1-145.
| Параметр | Значение |
|---|---|
| длина | 11100 мм |
| ширина | 335 мм |
| высота | 335 мм |
| масса | 880 кг |
| нормативный документ | Серия 3.501.1-145 |
С 11.1 Стойки железобетонные Серия 3.501.1-145.
