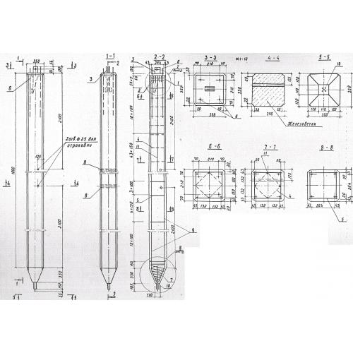
АС 10

Чертеж изделия:
Характеристики изделия:
ПараметрЗначение
длина10000 мм
ширина350 мм
высота350 мм
вес3130 кг
серия3.501.1-149

АС 10 Анкер свайный по серии 3.501.1-149.