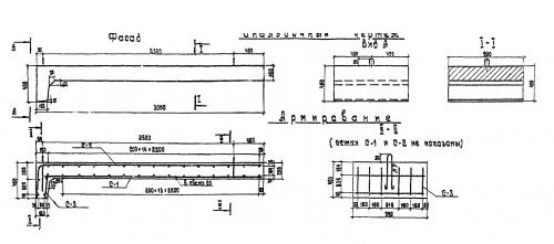
П 2

Чертеж изделия:
Характеристики изделия:
ПараметрЗначение
длина3000 мм
ширина980 мм
высота460 мм
масса1580 кг
нормативный документСерия 3.503-29

П 2  Плиты переходные по Серии 3.503-29.