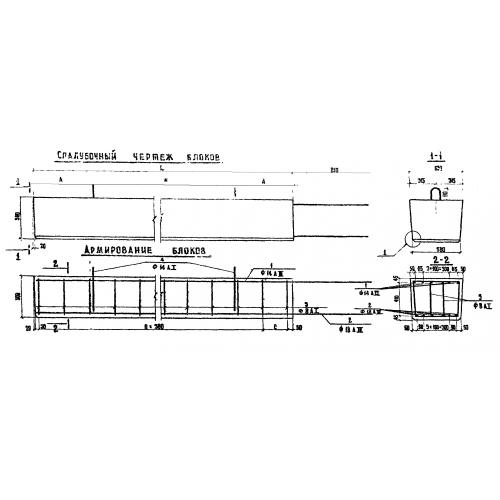
Л-4

Чертеж изделия:
Характеристики изделия:
ПараметрЗначение
длина6700 мм
ширина630 мм
высота610 мм
вес4300 кг
серия3.503-41

Л-4 Лежни железобетонные по серии 3.503-41.