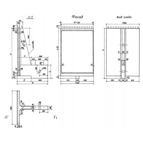
БТ 7

Чертеж изделия:
Характеристики изделия:
ПараметрЗначение
длина2650 мм
ширина1980 мм
высота6850 кг
вес7050 кг
серия3.503.1-67

БТ 7 Блоки контрфорсные таврового сечения по серии 3.503.1-67.