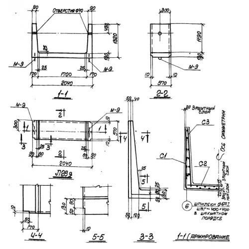
Л 28д

Чертеж изделия:
Характеристики изделия:
ПараметрЗначение
длина2040 мм
ширина570 мм
высота1320 мм
вес800 кг
серияХТР 1-1

Л 28д Лотки по серии ХТР 01-01.