СТГ 2.7

Чертеж изделия:
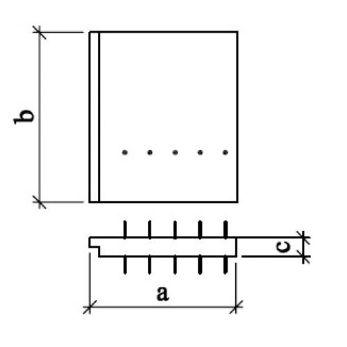
Характеристики изделия:
ПараметрЗначение
длина2700 мм
ширина300 мм
высота2600 мм
масса5100 кг
нормативный документШифр 2338

СТГ 2.7  Стенки гасителей по Шифру 2338.