ПЭ 30.12

Чертеж изделия:
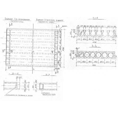
Характеристики изделия:
ПараметрЗначение
длина2980 мм
ширина1196 мм
высота220 мм
вес1020 кг
ШифрСК 1223

ПЭ 30.12 Плиты многопустотные безопалубочного формования по Шифру СК 1223.