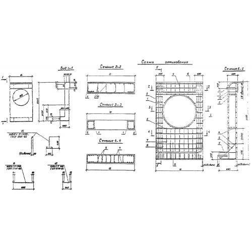
П 16.22

Чертеж изделия:
Характеристики изделия:
ПараметрЗначение
длина3350 мм
ширина2200 мм
высота680 мм
масса5150 кг
нормативный документТП 503-7-015.90

П 16.22  Портальные стенки по Типовому проекту ТП 503-7-015.90.