12 ДД
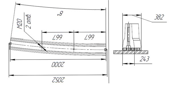
Характеристики изделия:
| Параметр | Значение |
|---|---|
| длина | 2052 мм |
| ширина | 382 мм |
| высота | 550 мм |
| масса | 1078 кг |
| нормативный документ | ТУ 5899-002-61548960-2010 |
Цена:
Рассчитать стоимость12 ДД Блоки парапетные двухсторонние переносные радиусные по ТУ 5899-002-61548960-2010.
